Neff
Piano a induzione con cappa integrata 80 cm senza profili V58NBS1L0
Piano a induzione con cappa integrata 80 cm senza profili V58NBS1L0
Impossibile caricare la disponibilità di ritiro
Generale
Colore principale - Nero
Larghezza - 80 cm
Numero totale di posizione utilizzabili simultaneamente - 4
Dimensione delle zone di cottura - 2 x (19,0 x 21,0 cm), 1 x (18,0 cm Ø), 1 x (21,0 cm Ø)
Potenza dei bruciatori - 1 x 1.8 (3.1), 3 x 2.2 (3.7) kW
Tipo di cornice - Senza cornice
Numero di piastre radianti - 0
Numero zone a induzione - 4
PowerBoost - Tutte le zone di cottura
Tipo di comandi e indicatori - Non disponibili
Potenza massima - 500 m³/h
Potenza massima espulsione aria con stadio intensivo - 622 m³/h
Massima potenza ricircolo d'aria - 441 m³/h
Massima potenza ricircolo d'aria con livello intensivo - 595 m³/h
Potenza sonora alla velocità max - 69 dB
Incremento della potenza sonora - 74 dB
Livello sonoro - 69 dB
Energy consumption - 185 Wh/kg
Accessori inclusi - 1x Filtro antiodore Clean Air Plus
Dimensione e Peso
Dimensioni(AxLxP) - 223x802x522 mm
Dimensioni del prodotto imballato (AxLxP) - 431 x 950 x 672 mm
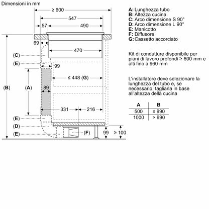
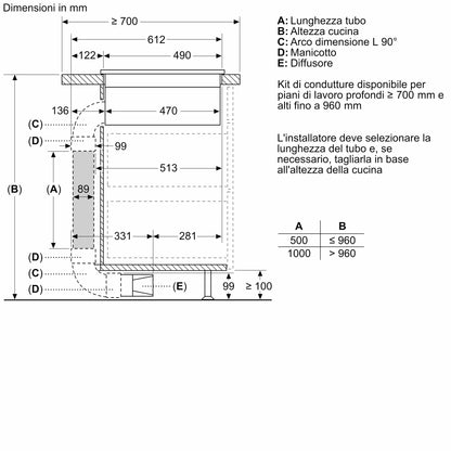
Altezza minima della nicchia - 490 mm
Altezza massima della nicchia - 490 mm
Larghezza minima della nicchia - 750 mm
Larghezza minima della nicchia - 750 mm
Profondità della nicchia - 223 mm
Spessore apparecchio sopra il piano di lavoro - 6.0 mm
Specifiche Tecniche
Potenza - 7400 W
Tensione - 220-240/380-415 V
Lunghezza del cavo di alimentazione elettrica - 110 cm
Tipo di spina - Senza spine (connessione elettrica a cura di un elettricista)
Manuale incluso - [DA, DE, FI, NL, NO, SV]
Comfort piano cottura
Tipologia di comandi - Touch Control
Numero di potenze di cottura - 17 livelli
Flessibilità delle zone di cottura - CombInduction - per unire due zone cottura
Funzione Booster - Si
Vetro ultraresistente - No
ActiveLight Plus - No
Frying Sensor - Si
Sensore di cottura - No
Cooking sensor plus - No
Power Move - No
Power Transfer - No
Quick Start - Si
Funzione scaldavivande - No
Timer - Si
Timer - Interruttore spegnimento, Count-down timer
Comfort cappa
Eco silence drive - Si
Posizione della funzione Boost - Si
Funzione post-cottura - Si
Indicazione saturazione filtro - Si
Velocità di funzionamento - 3 stage + 2 intensive
Connettività
Home Connect per connessione Wi-Fi - No
Caratteristiche Home Connect - No
Sicurezza
Indicatore di calore residuo - Separato
Dispositivo di sicurezza - Blocco di sicurezza bambini, Spegnimento per inattività, Spegnimento per riconoscimento pentola/padella, Spegnimento per riconoscimento fuoriuscite
Share
